Business Case

 Battle Hall Renovation Project – University of Texas

Austin, Texas

Industry:

Architectural, Engineering, Construction

In Partnership With:

QA Construction Services

Technologies Used:

Matterport, Revit, CAD, Progressive Scanning, 360 imagery

Deliverables:

Matterport Tour, As-Built Documentation, BIM file, REVIT, CAD, PDF files

Objectives:

Preservation of Historical Building, Renovation Purposes, Underground Scanning, Engineering.

Description

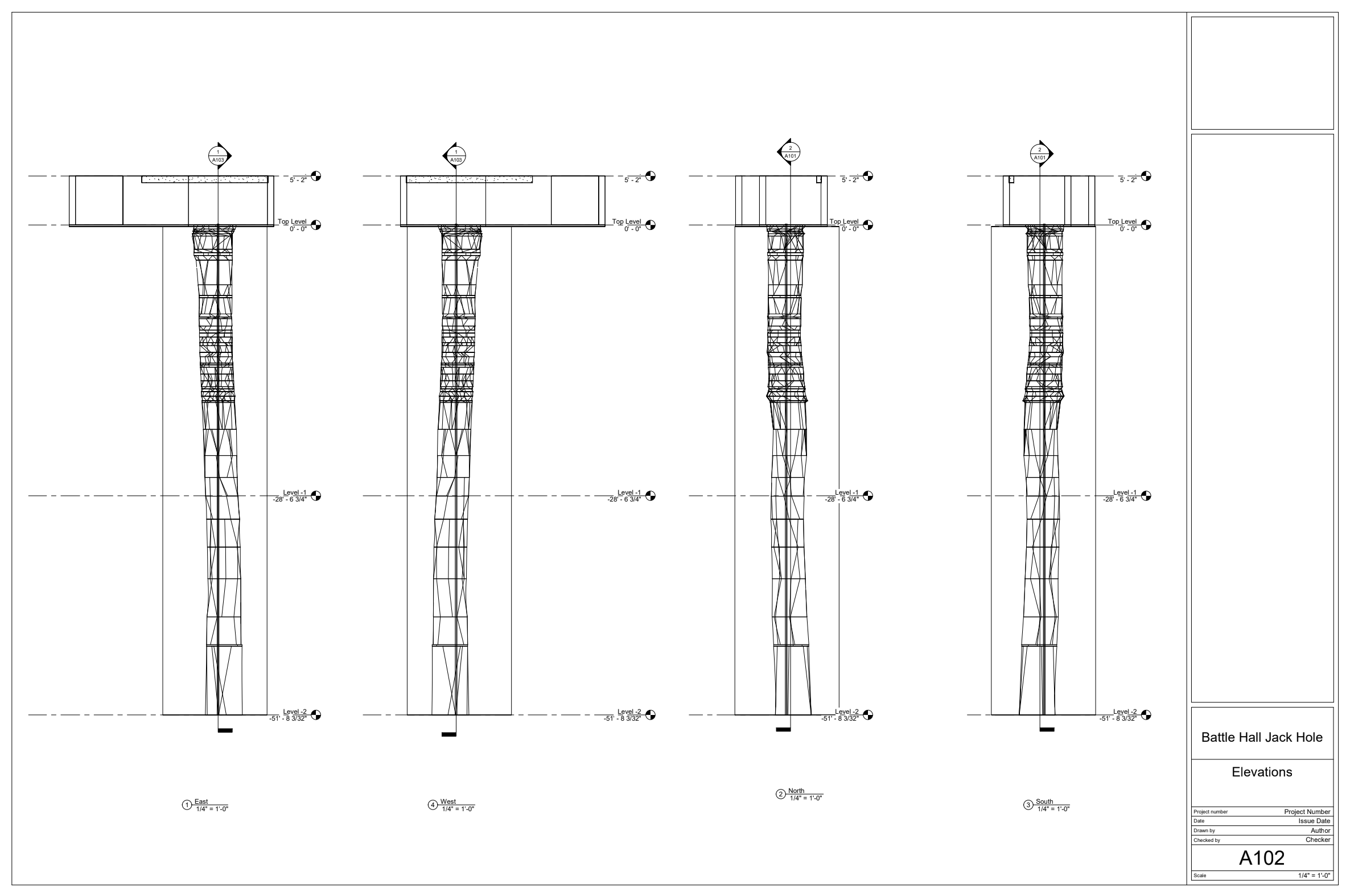
This project involved Historical Preservation, Architectural Renovation and an Engineering portion, since we are asked to scan a 50 Feet jack hole for a lift in 3D and provide a BIM Model of it, so they could continue working.

The project also involved Progressive Scanning throughout the renovation process.

Total Square Footage

42,000 Square Feet

Time Needed for Completion

7 working days

Gallery

Contact us today to discuss your project and
get a FREE quote

Let’s bring your vision to life with precision 3D scanning & As-Built Documentation.

Howdy, our website uses cookies to enhance your browsing experience. Read our Cookie Policy