Business Case

Heaven for Hope – Facilities Management

San Antonio, Texas

Industry:

Facilities Management, Renovation, Maintenance

In Partnership With:

Heaven for Hope

Technologies Used:

Matterport, Revit, CAD, Progressive Scanning, Blur Facing.

Deliverables:

Deliverables: Matterport Tour, As-Built Documentation, BIM file, REVIT, CAD, PDF files

Objectives:

Facilities Management, Renovation, Maintenance

Description

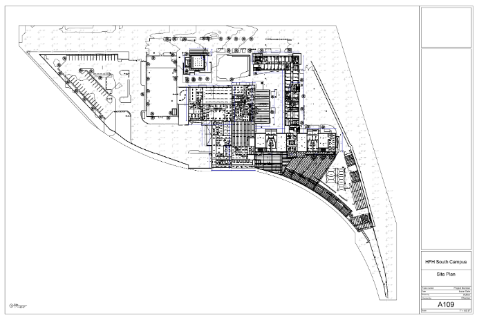
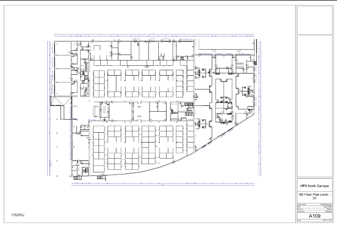
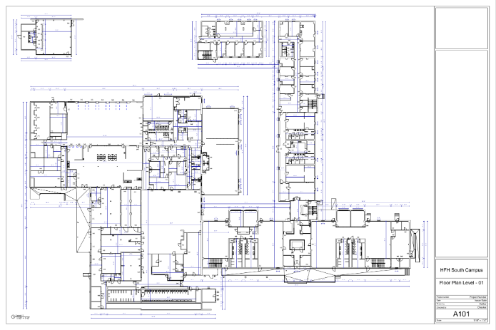
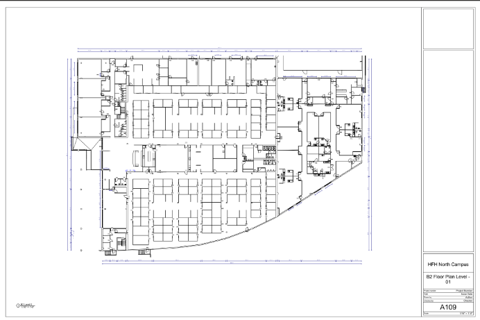
This project has been our largest undertaking in terms of extension, time and resources needed. We fully scanned 26 acres of multiple-use buildings, structures and open spaces, including a chapel, dormitories, schools, the San Antonio Food Bank (that is inside of Haven for Hope), warehouses, health clinics, part of the Railroad, distribution centers, access points, playgrounds, recreational sites and offices.

The final result of the scan was over 1 TB of data, 421 different As-Built documents / drawings and one of the most densely scanned Homeless Centers in the country.

Total Square Footage

26 Acres

Time Needed for Completion

60 days

Gallery

Contact us today to discuss your project and
get a FREE quote

Let’s bring your vision to life with precision 3D scanning & As-Built Documentation.

Howdy, our website uses cookies to enhance your browsing experience. Read our Cookie Policy